Кут зовнішній УТП 1
Термопанель або ізосайдінг - є трикомпонентним матеріалом являючи собою плиту пінополістиролу (ПСБ С-35), армовану армовану полімерним акриловим фасадним складом (товщина акрилового покриття 3-4 мм). Термопанель (ізосайдінг) - володіє високими теплоізоляційними характеристиками з коефіцієнтом теплопровідності 0,03 Вт / м * К.
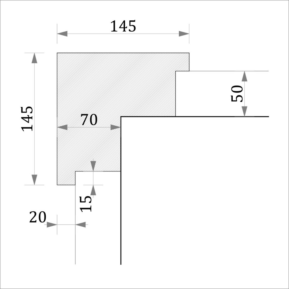
Кут має розмір 145х145х70, товщина варіюється в залежності до вимог по теплоізоляції.
При замовленні куточка товщиною 140 мм, загальна вартість збільшиться на 30%.
Ціна за 1 пог. м!
Основні конкурентні переваги в порівнянні з аналогічними матеріалами це легкість при монтажі і вартість матеріалу, і при цьому, термін служби даного фасаду дорівнює терміну служби всієї будівлі.
Переваги ізосайдінга:
- Ізосайдінг сприяє економії на опаленні до 60%.
- Панелі Ізосайдінга з'єднуються через сполучну планку, що виключає містки холоду.
- Поверхня "Ізосайдінга", через високу адгезії і еластичності, не схильна до утворення тріщин, що сприятливо позначається на загальній стійкості фасадів до температурних і фізичним деформацій.
-Так як Ізосайдінг це фінішне покриття, є можливість надати йому будь-який колір і відтінок.
- При монтажі ізосайдінга не використовують комплектуючі з металу, які з часом піддаються корозії.
Монтаж Ізосайдінга значно простіше в порівнянні з іншими системами "мокрого фасаду".
- Ізосайдінг в комплектації з добірними елементами декору мають однорідний склад, і за рахунок цього готовий фасад являє собою високоефективний «термос», але так як панель є паропроницаемой то вся конструкція стінового пирога будинку дихає підтримуючи необхідний мікроклімат взимку тепло а влітку прохолоду.
| Характеристики | |
| Довжина (мм) | 2000 |
| Колір | сірий |
| Покриття | Цементно-клейове |
| Тип | З'єднувальний кут зовнішній |
| Товщина (мм) | 70 |
| Ширина (мм) | 145 |
Гіпсова ліпнина Київ ☙🏛️❧ Фасадний декор Київ ☙🏛️❧ Гіпсова ліпнина Дніпро ☙🏛️❧ Фасадний декор Дніпро ☙🏛️❧ Ліпнина з гіпсу Одеса ☙🏛️❧ Фасадний декор Одеса ☙🏛️❧ Гіпсова ліпнина Львів ☙🏛️❧ Декор на фасад Львів ☙🏛️❧ Гіпсова ліпнина Тернопіль ☙🏛️❧ Декор для фасаду Тернопіль ☙🏛️❧ Ліпнина з гіпсу Чернігів ☙🏛️❧ Фасадна ліпнина Чернігів ☙🏛️❧ Гіпсова ліпнина Чернівці ☙🏛️❧ Декор для фасаду Чернівці ☙🏛️❧ Ліпнина Івано-Франківськ ☙🏛️❧ Фасадна ліпнина Івано-Франківськ ☙🏛️❧ Гіпсова ліпнина Рівне ☙🏛️❧ Фасадний декор Рівне ☙🏛️❧ Гіпсова ліпнина Луцьк ☙🏛️❧ Фасадний декор Луцьк ☙🏛️❧ Гіпсова ліпнина Запоріжжя ☙🏛️❧ Декор для фасаду Запоріжжя ☙🏛️❧ Гіпсова ліпнина Ужгород ☙🏛️❧ Декор для фасаду Ужгород ☙🏛️❧ Ліпнина з гіпсу Полтава ☙🏛️❧ Гіпсова ліпнина Житомир ☙🏛️❧ Фасадний декор Житомир ☙🏛️❧ Ліпнина з гіпсу Хмельницький ☙🏛️❧ Декор для фасаду Хмельницький ☙🏛️❧ Ліпнина з гіпсу Вінниця ☙🏛️❧ Фасадний декор Вінниця ☙🏛️❧ Ліпнина з гіпсу Черкаси ☙🏛️❧ Декор для фасаду Черкаси ☙🏛️❧ Гіпсова ліпнина Кропивницький ☙🏛️❧ Фасадний декор Кропивницький ☙🏛️❧ Ліпнина з гіпсу Миколаїв ☙🏛️❧ Декор для фасаду Миколаїв ☙🏛️❧ Ліпнина з гіпсу в Сумах ☙🏛️❧ Гіпсовий декор в Херсоні ☙🏛️❧ Фасадний декор в Сумах ☙🏛️❧ Декор для фасаду в Херсоні ☙🏛️❧ Гіпсові 3д панелі Львів ☙🏛️❧ Гіпсові панелі Тернопіль ☙🏛️❧ Гіпсова ліпнина Самбір ☙🏛️❧ Гіпсові 3d панелі Івано-Франківськ ☙🏛️❧ Гіпсові панелі в Луцьку ☙🏛️❧ Гіпсові панелі в Рівному ☙🏛️❧ Гіпсові 3д панелі в Дніпрі ☙🏛️❧ Ліпнина з гіпсу в Червонограді ☙🏛️❧ Гіпсова ліпнина в Калуші ☙🏛️❧ Гіпсові 3д панелі в Києві ☙🏛️❧ Ліпнина з гіпсу в Коломиї ☙🏛️❧ 3д панелі з гіпсу в Одесі ☙🏛️❧ Гіпсова ліпнина Дрогобич ☙🏛️❧ Ліпний декор Стрий ☙🏛️❧ Ліпнина з гіпсу Новояворівськ☙🏛️❧ Гіпсові 3d панелі Хмельницький ☙🏛️❧ 3д панелі з гіпсу в Ужгороді ☙🏛️❧ Гіпсові панелі в Чернівцях ☙🏛️❧ Гіпсова ліпнина в Пасіки-Зубрицькі ☙🏛️❧ 3д панели из гипса в Виннице ☙🏛️❧ Гипсовые панели в Житомире ☙🏛️❧ Гіпсові колони Львів ☙🏛️❧ Гіпсові скульптури Львів ☙🏛️❧ Фасадний декор з пінопласту Львів ☙🏛️❧ Гіпсові 3д панелі в Полтаві ☙🏛️❧ Панелі з гіпсу в Запоріжжі ☙🏛️❧ Гіпсові панелі в Миколаєві ☙🏛️❧ 3д панелі з гіпсу в Черкасах ☙🏛️❧ Гіпсові 3д панелі в Кропивницькому ☙🏛️❧ 3д панелі з гіпсу в Сумах ☙🏛️❧ Гіпсова ліпнина в Ковелі ☙🏛️❧ 3д гіпсові панелі в Чернігові




















